Opis nieruchomości
10 arowa uzbrojona działka budowlana idealna pod zabudowę – Stobierna gm. Trzebownisko powiat rzeszowski.
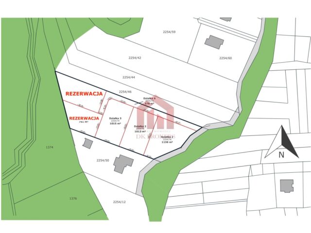
Zapraszam do zapoznania się z ofertą działki na sprzedaż o pow. 1013 m na zaznaczonym zdjęciu jako działka nr 2.
Działka położona jest w bardzo urokliwym i spokojnym zakątku miejscowości Stobierna gm. Trzebownisko na północ od Rzeszowa. Wokół nowe domy, willowa zabudowa z dużą dozą ciszy, spokoju i zieleni.
PINEZKA: https://maps.app.goo.gl/N6vnmE73S4nZ5xd79
Odległość od centrum Rzeszowa – 12 km
Odległość od lotniska – 5,5 km
Odległość od Autostrady
Jest to jedna z 5 nowo wydzielanych działek pod zabudowę jednorodzinną, tworząc bardzo urokliwe i nowe osiedle domów:
Działka nr 1 – 1136 m2 – rezerwacja
Działka nr 2 – 1013 m2 – rezerwacja
Działka nr 3 – 1015 m2 – rezerwacja
Działka nr 4 – 761 m2 – rezerwacja
Działka nr 5 – 1020 m2 – rezerwacja
Działka nr 6 – droga dojazdowa
Działka nr 2254/48 obr. 0005 Stobierna
Uzbrojenie terenu:
– prąd na działce,
– woda na działce,
– gaz na działce sąsiedniej w odległości do 60 m,
– na ten moment brak kanalizacji sanitarnej – możliwość zastosowania przydomowej oczyszczalni ścieków.
Działka będzie posiadać Decyzję o Warunkach Zabudowy na dom jednorodzinny. Teren jest idealnie płaski.
Działka jest świetnym miejscem pod budowę przyszłego domu ale również może posłużyć jako lokata kapitału na przyszłość, a także jako inwestycja z dużym potencjałem wzrostu wartości w czasie.
Zapraszam do kontaktu i prezentacji na żywo.
Kontakt:
Denis Kapusta
tel: 536 264 455
e-mail: denis.kapusta@dkbrokers.pl
W ofercie mamy łącznie ponad 150 działek na sprzedaż – www.dkbrokers.pl – specjaliści od gruntów.
Treść niniejszego ogłoszenia nie stanowi oferty handlowej w rozumieniu Kodeksu Cywilnego.
Szczegóły
| Numer oferty: | 7163 |
|---|---|
| Miasto: | Stobierna |
| Powierzchnia: | 1 013,0 m2 |
| Gaz: | do 100m |
| Woda: | jest |
| Przeznaczenie: | budowlana |
| Droga doajzdowa: | asfaltowa |





































