Opis nieruchomości
Nowoczesny dom parterowy w Podolu na sprzedaż (gm. Przecław | powiat mielecki).
Przedstawiamy na sprzedaż wyjątkową nieruchomość położoną w sąsiedztwie lasu: oto parterowy dom o nowoczesnej prostej bryle, położony zaledwie 20 minut jazdy od Dębicy i Mielca.
Dom budowany przez najlepszą firmę realizującą domy szkieletowe na Podkarpaciu!
Stan domu: cena domu w stanie deweloperskim.
DLA KOGO?
Idealny dla rodzin 2+2 lub osób, które poszukują komfortu i przestrzeni do życia w bliskości z naturą i sąsiedztwie lasu.
Opis domu na sprzedaż w Podolu:
– lokalizacja: Podole, gm. Przecław, powiat mielecki
– Dom o powierzchni użytkowej 116 m
– Dom drewniany budowany metodą szkieletową
– dojazd drogą asfaltową
– wybudowany z najwyższą starannością, by zapewnić domownikom maksymalny komfort, a przy tym minimalizować koszty eksploatacji
– wszystkie media: woda, kanalizacja, prąd, gaz
– taras zadaszony 15 m2
– ogrzewanie: gazowe (podłogówka)
Najważniejsze cechy i standard wykonania:
Dom jest energooszczędny KOSZT UTRZYMANIA DOMU SZACOWANY NA 2500,00 ZŁ / ROCZNIE.
Budowany ze starannością o izolacją
(30 cm wełny) i trzyszybowymi oknami, które zapewniają świetną szczelność i minimalne straty ciepła.
Instalacja ogrzewania gazowego z pełną podłogówką oraz przygotowaniem do montażu klimatyzacji.
BRYŁA DOMU NA SPRZEDAŻ
Przytulna bryła domu oraz harmonijna kolorystyka, utrzymana w odcieniach bieli i wykończenia z naturalnego drewna doskonale komponują się z otaczającym krajobrazem sosnowego lasu.
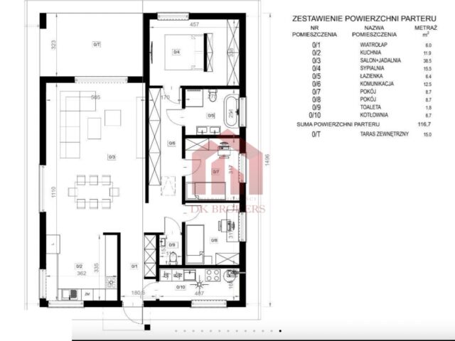
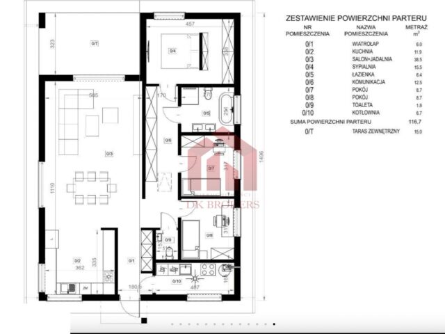
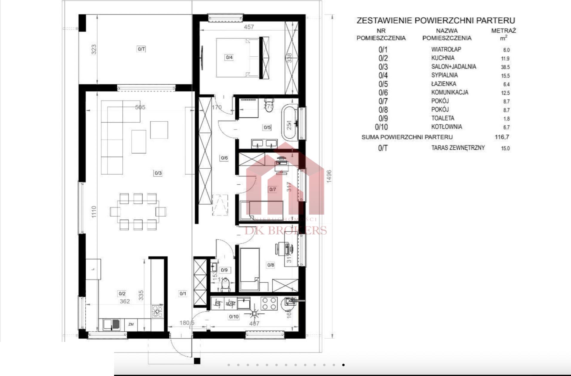
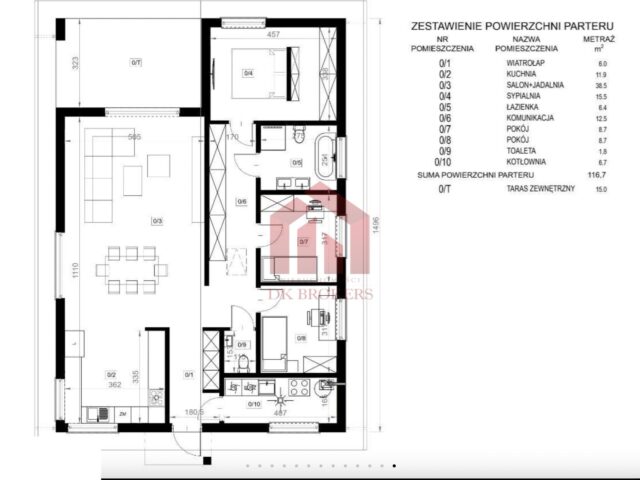
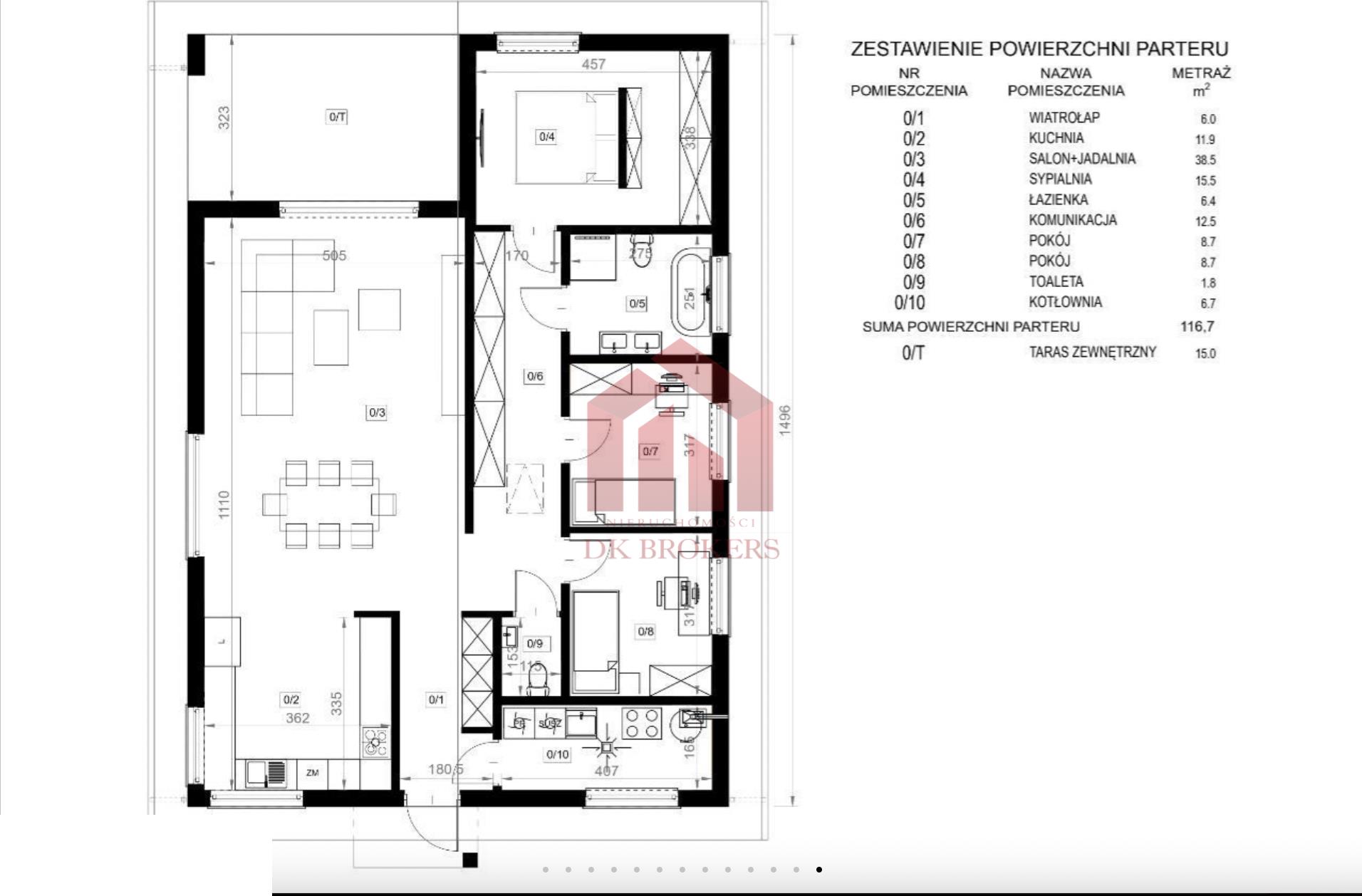
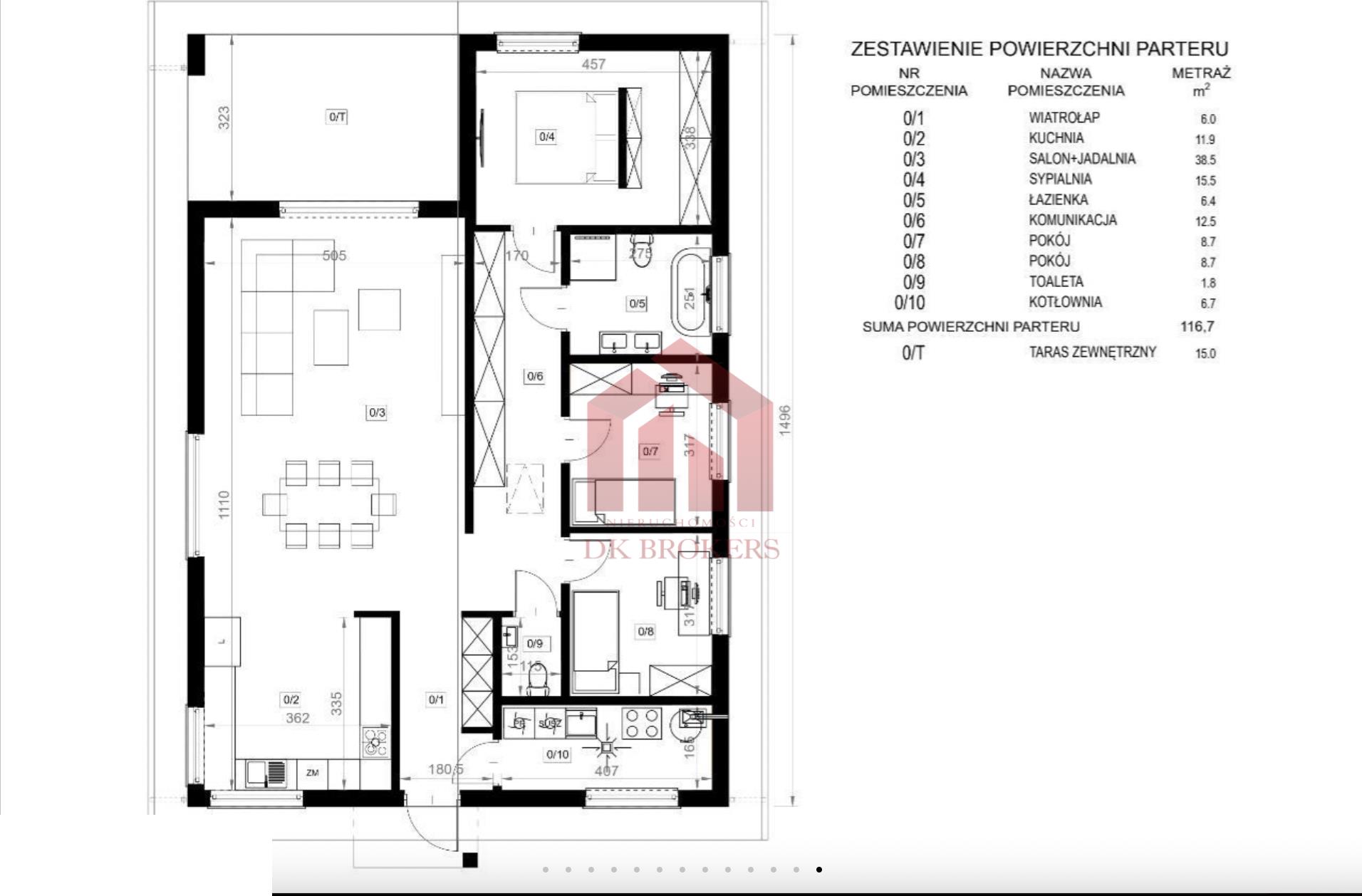
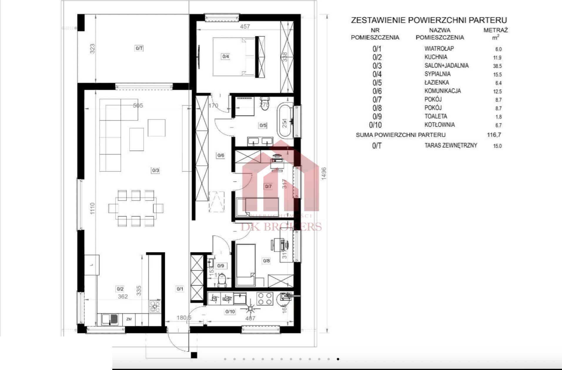
UKŁAD POMIESZCZEŃ:
1) wiatrołap 6 m2
2) kuchnia 11,9 m2
3) salon z jadalnią 38,5 m2
4) sypialnia 15,5 m2
5) łazienka 6,4 m2
6) komunikacja (przedpokój) 12,5 m2
7) pokój 8,7 m2
8) pokój 8,7 m2
9) wc 1,8 m2
10) kotłownia 6,7 m2 (z pralnią)
Przemyślany układ pomieszczeń zapewnia wygodę codziennego życia dla rodziny 4-osobowej.
Strefa dzienna to przestronny i jasny salon połączony z jadalnią z dużymi przeszkleniami z widokiem na las.
W sypialni głównej zaprojektowano garderobę. W dużej łazience bez problemu zmieści się wanna oraz prysznica. Dodatkowo jest wc dla gości.
Dodatkowe pomieszczenia: wiatrołap z dostępem do kotłowni i pralni oraz przestrzeń do przechowywania na strychu.
Z salonu można wyjść na zadaszony taras o powierzchni 15 m, który doskonale nadaje się do odpoczynku w otoczeniu zieleni lub spotkań z rodziną i przyjaciółmi.
DZIAŁKA
Przestronny ogród o powierzchni 13 arów, idealny do rekreacji na świeżym powietrzu. Bez wątpienia największy atutem jest otoczenie sosnowego lasu.
Dlaczego warto?
To wyjątkowa oferta dla tych, którzy cenią sobie wysoką jakość wykonania, naturalne otoczenie i spokój, a jednocześnie chcą mieszkać w komfortowych warunkach, z nowoczesnymi rozwiązaniami.
Budynek z gwarancją. Wykonawca to solidna firma, która gwarantuje najwyższą jakość na rynku.
Budynek sprzedawany jest w stanie deweloperskim gotowy do realizacji Państwa wymarzonej aranżacji wnętrz.
Cena: 739 000,00 PLN
Nie zwlekaj skontaktuj się z nami i przekonaj się, czy ten dom stanie się Twoim wymarzonym miejscem na ziemi.
Umów się na oglądanie:
Denis Kapusta tel.: 536 264 455
denis.kapusta@dkbrokers.pl
Treść niniejszego ogłoszenia nie stanowi oferty handlowej w rozumieniu Kodeksu Cywilnego.
Szczegóły
| Numer oferty: | 7356 |
|---|---|
| Miasto: | Podole |
| Powierzchnia: | 116,0 m2 |
| Powierzchnia działki: | 1 300,0 m2 |
| Rok budowy: | 2024 |
| Liczba pokoi: | 4 |
| Liczba pieter: | 1 |
| Materiał: | drewno |
| Okna: | PCV |
| Dach: | blacha |
| Ogrzewanie: | gazowe |
| Gaz: | jest |
| Woda: | jest |
| Kanalizacja: | miejska |
| Dojazd: | asfaltowa |





































